GARANTOVANÁ HYPOTÉKA S ÚROKOM 1,49% na 12 mesiacov. Pozor ponuka je časovo obmedzená.
Bližšie informácie v prípade záujmu na tel. čísle : +421 908 120 140
Niwio reality ponúka na predaj DEVELOPERSKÝ projekt rodinných domov vo Hviezdoslavove. Rodinné bývanie v 4-izbových mezonetových bytoch so záhradou nachádzajúcich sa v novovzniknutej tichej lokalite.
Byt :
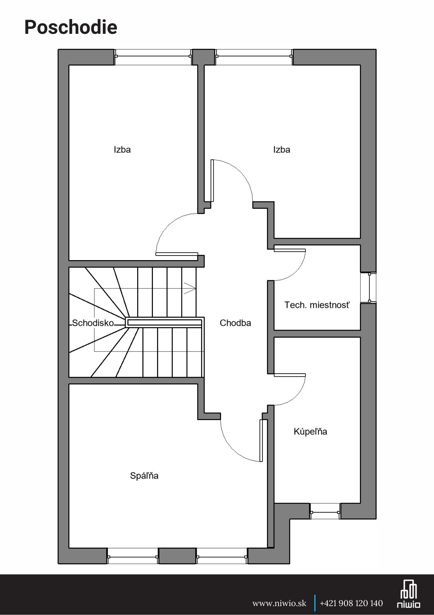
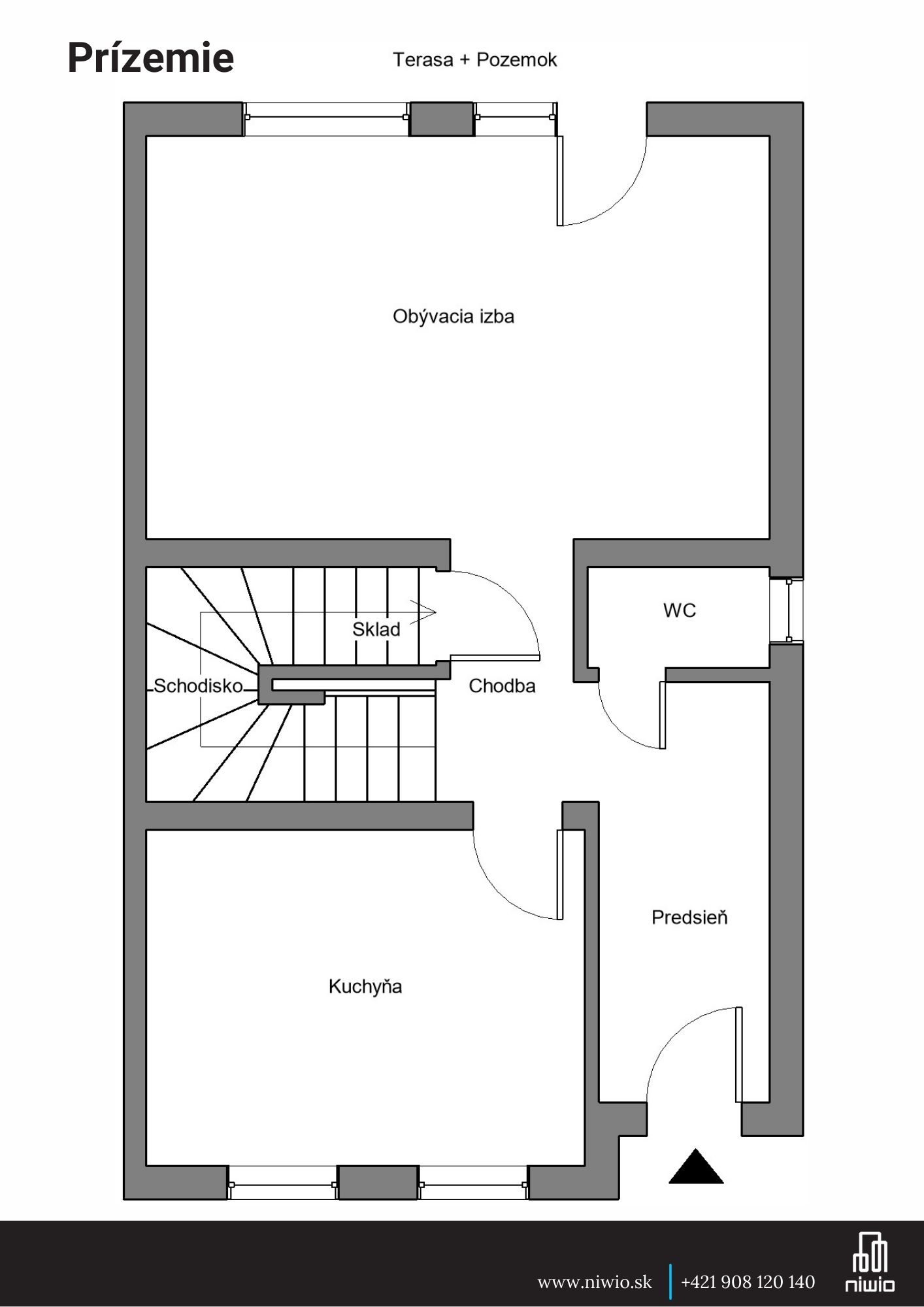
- 4-izbový mezonetový byt v dvojdome so záhradou
- výstavba 2022
- výmera bytu 91m2 (prízemie 49,85m2 + poschodie 41,45m2)
- pozemok : Krajný byt – 180m2
Stredný byt – 90m2
- parkovacie státie priamo pred bytom
- terasa
- Vyhotovenie : Tehla hr. 300 mm
Zateplenie hr. 160mm
6 – komorové plastové okná s izolačným 3-sklom
Železobetónové stropy
Akustické medzibytové steny
Podlahové kúrenie – regulácia v každej izbe
Ohrev TÚV – vlastný inteligentný bojler
Inžinierske siete (verejný vodovod, elektrina, kanalizácia)
Predpríprava na TV a Internet
- základné vyhotovenie v stave holobyt
Štandard :
- Byt je možné vyhotoviť v prípade záujmu do štandardu, ktorý bude podľa Vašeho výberu. V rámci štandardu bude vyhotovené – obklady, dlažby, plávajúca podlaha, sanita a dvere
Lokalita:
- Hviezdoslavov
- vyhľadávaná lokalita pri Bratislave
- kompletná občianska vybavenosť priamo v meste
- zastávky : vlak – 500m , autobus – 600m
- priame napojenie na diaľnicu R7
- dostupnosť autom : Bratislava-centrum 20min. , Šamorín centrum 6min., Dunajská streda-centrum 20min, Senec-centrum 20min.
- rekreácia: Aquapark, jazdecká škola, cyklotrasy, futbalové ihrisko, reštaurácie
Pre viac informácií nás neváhajte kontaktovať !
Cena: 176 900 eur
Cena nehnuteľnosti zahŕňa kompletný právny a poradenský servis realitnej kancelárie niwio s. r. o. vrátane provízie RK + poradenstvo s možnosťou zabezpečenia hypotekárneho úveru.
KONTAKT :
niwio s.r.o
info@niwio.sk
+421 908 120 140
Text a fotografie sú autorským dielom a majetkom realitnej kancelárie niwio s.r.o.
Vizualizácie exteriéru vyhotovila spoločnosť vizualizacie3d s.r.o.
